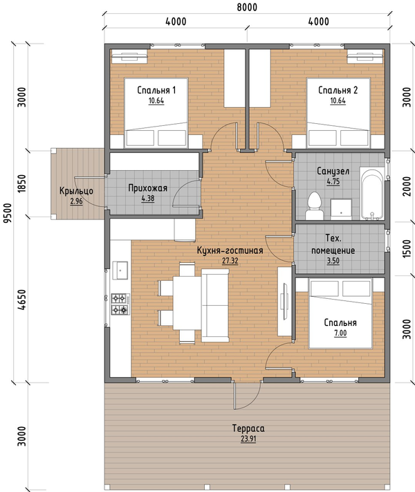
Дом 8х9,5м. с террасой. Со всеми коммуникациями и отделкой. ДК-2025
Стоимость:
6 992 025 ₽
Стоимость с 23 мая: 7 551 387 ₽
3 спальни
1 санузел
Построенные дома по проекту
Комплектации дома
Фундамент
Вид фундамента
Винтовые сваи
Пиломатериалы на дом
Тип пиломатериала
Сухая строганная доска
Перекрытия
Составная обвязка
Строганная доска 45х145мм.
Сетка от грызунов
Металлическая сетка от грызунов
Черновые полы
Строганная доска 20х95мм.
Лаги пола
Строганная доска 45х195мм.
Лаги потолка
Строганная доска 45х195мм.
Стропильная система
Строганная доска 45х195мм.
Стены и перегородки
Стены наружные
Строганная доска 45х145мм.
Перегородки внутренние
Строганная доска 45х95мм.
Высота потолка
2700мм.
Крыша
Обрешетка
Строганная доска 20х95мм.
Контробрешетка
Строганный брусок 45х45мм.
Кровельное покрытие
Металлочерепица Супермонтеррей
Водосточная система
Пластиковая система Docke Premium
Паро-гидро-ветроизоляция
Влаго-ветрозащита пола
Ондутис Smart A 100
Пароизоляционная пленка
Пленка 200мкм
Подкровельная супердиффузионная мембрана
Ондутис Smart AM
Герметизация пароизоляционной пленки
Лента Eurovent Unisan
Утепление
Пол
Rockwool Лайт Баттс 200мм.
Стены
Rockwool Лайт Баттс 150мм.
Потолок
Rockwool Лайт Баттс 200мм.
Перегородки внутренние
Rockwool Лайт Баттс 100мм
Наружная отделка
Контробрешетка на фасад
Сухая рейка 20х45мм.
Стены наружные
Имитация бруса, карельский профиль
Свесы и углы, наличники
Строганная доска 20х95мм.
Заводская покраска фасада
Краски Teknoviks в 3 слоя
Пол террасы (при наличии)
Террасная доска, Вельвет
Ограждение террасы (при наличии)
Строганная доска 20х95мм.
Окна, двери
Оконные блоки и балконная дверь
Двухкамерные стеклопакеты ПВХ
Аксессуары к оконным блокам
Отливы внешние
Входные дверные блоки
Металлическая Россия
Перегородочные двери
Отсутствуют
Внутренняя отделка
Внутренняя контробрешетка
Сухая рейка 20х45мм.
Стены
Евровагонка
Перегородки
Евровагонка
Потолок
Евровагонка
Напольное покрытие
Quick Deck Professional
Коммуникации
Вентиляция
Приточные клапана на Кухне, Сан. узле
Электропроводка
Розетки, выключатели, лампы, распределительный щиток
Автономная канализация
Станция биологической очистки
Водоснабжение (трубы)
Разводка ХВС, ГВС и канализации
Водоснабжение (горячая вода)
Бойлер электрический 100 л
Отопление
Электрические конвектора
Доставка, сборка, контроль, гарантия
Доставка и выгрузка материалов
Включена доставка и выгрузка
Сборка домокомплекта
Сборка по проектной документации (КД)
Технический надзор
Контроль персональным прорабом
Гарантия
Три года
Дополнительные опции
Фундамент: замена Винтовых свай на Железобетонные сваи, стоимость от
81 500 ₽
Коммуникации
Отопление: замена на электрический котел + радиаторы
567 460 ₽
Теплый пол под ключ + стяжка
618 200 ₽
Бытовая сантехника (унитаз, раковина, душевая кабина)
186 500 ₽
Варианты внутренней отделки
Замена Евровагонки на ГКЛ 2 слоя
132 680 ₽
Замена Евровагонки на Имитацию бруса (стены, перегородки)
143 120 ₽
Ламинат, 33 класс, толщина 8мм.
243 200 ₽
Установка перегородочных дверей (МДФ + Эко-шпон)
152 900 ₽
Покраска внутренних стен воском Teknoviks в 3 слоя (грунтовка + два слоя воска)
387 000 ₽
Варианты внешней отделки
Покраска фасада красками Teknoviks в 3 слоя (грунтовка + два слоя краски)
включено в базовую стоимость
Отделка фасада сайдингом "Дёке"
30 000 ₽
Отделка фасада "Hauberk" (камень, кирпич)
68 000 ₽
Отделка фасада Имитацией бруса вертикально
92 800 ₽
Отделка фасада Фиброцементный сайдинг Decover
260 000 ₽
Установка москитных сеток, подоконников
49 000 ₽
Установка водосточной системы "Дёке"
включено в базовую стоимость
Установка цокольных панелей "Дёке"
118 680 ₽
Конструктивные элементы
Антисептирование силового каркаса на производстве
89 000 ₽
Усиленные лаги пола и потолка - 200мм.
включено в базовую стоимость
Поднятие потолка на 150мм
97 000 ₽
Сетка от грызунов
включено в базовую стоимость
Утепление стен до 200мм
89 000 ₽
Тепло-звукоизоляция наружных стен Белтермо 20мм.
137 000 ₽
Аренда блок-контейнера для проживания бригады
68 000 ₽
Аренда биотуалета
25 400 ₽
Кастомизируйте свой дом
По вашим наброскам и чертежам совместно с архитектором создадим неповторимый дом мечты. Оставьте заявку и наш специалист свяжется с вами.
Причины заказать дом именно у нас
1
Гарантия на ваш дом на 5 лет
2
Оплата работ после сдачи объекта
3
Надзор на всех этапах монтажа и строительства
4
Не срываем сроки, платим неустойки
5
Дома строятся только по проектной документации архитектора
6
Работаем с ипотекой, материнским капиталом, субсидиями
Зафиксируйте стоимость дома

Посмотрите видео о контроле качества при строительстве








