Дом из газобетона 13х14 С012
Стоимость:
* Цена в теплом контуре, без привлечения кредитных средств13 211 357 ₽
Стоимость с 15 апреля: 14 268 266 ₽
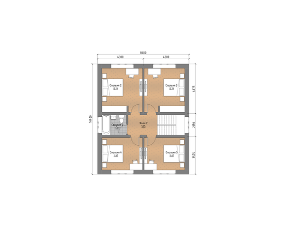
5 спален
2 санузла
Комплектации дома
Фундамент
Геодезические работы
Выставление четырех отметок на участке
Подготовительные работы
Геологические изыскания на участке
Подготовительные работы
Разработка котлована
Закладные под коммуникации
Электричество, канализация, водоснабжение
Монтаж фундамента
Устройство монолитной фундаментной плиты, 300мм.
Стены и перегородки
Стены наружные
Газобетонный блок D500, 375мм.
Перегородки несущие
Газобетонный блок D500, 250мм.
Перегородки внутренние
Газобетонный блок D500, 100мм.
Межэтажное перекрытие
Сухая доска 50х200мм.
Высота потолка
3000мм.
Крыша
Стропильная система
Сухая доска 50х200мм.
Обрешетка
Сухая доска 100х25мм.
Контробрешетка
Сухой брусок 50х50мм
Кровельное покрытие
Металлочерепица Grand Line, толщина 0,5мм
Водосточная система
Пластиковая система Docke Premium
Гидро-ветроизоляция
Подкровельная супердиффузионная мембрана
Ондутис Smart AM
Пароизоляционная пленка
Ондутис Smart AM (черная)
Герметизация стыков мембраны
Лента Eurovent Unisan
Утепление
Кровля
Rockwool Лайт Баттс 200мм.
Наружная отделка
Контробрешетка на фасад
Отсутствует
Стены наружные
Отсутствует
Свесы кровли
Отсутствует
Пол террасы/балкона
Отсутствует
Ограждение террасы/балкона
Отсутствует
Окна, двери
Оконные блоки и балконная дверь
Пятикамерный профиль Veka Softline, 70мм.
Аксессуары к оконным блокам
Отсутствуют
Входные дверные блоки
Металлическая Россия
Перегородочные двери
Отсутствуют
Внутренняя отделка
Внутренняя контробрешетка
Отсутствует
Стены
Отсутствует
Перегородки
Отсутствует
Потолок
Отсутствует
Напольное покрытие
Отсутствует
Лестница межэтажная
Отсутствует
Доставка, сборка, контроль, гарантия
Доставка и выгрузка материалов
Включена доставка и выгрузка
Сборка домокомплекта
Сборка по проектной документации (КД)
Технический надзор
Контроль персональным прорабом
Гарантия
Три года
Дополнительные опции
Кастомизируйте свой дом
По вашим наброскам и чертежам совместно с архитектором создадим неповторимый дом мечты. Оставьте заявку и наш специалист свяжется с вами.
Причины заказать дом именно у нас
1
Гарантия на ваш дом на 5 лет
2
Оплата работ после сдачи объекта
3
Надзор на всех этапах монтажа и строительства
4
Не срываем сроки, платим неустойки
5
Дома строятся только по проектной документации архитектора
6
Работаем с ипотекой, материнским капиталом, субсидиями
Зафиксируйте стоимость дома

Посмотрите видео о контроле качества при строительстве











