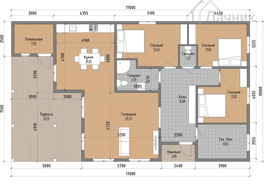
Каркасный дом 10х17м., с террасой Дк-234
Стоимость:
* Цена в теплом контуре, без привлечения кредитных средств8 354 700 ₽
Стоимость с 23 мая: 9 023 076 ₽
3 спальни
2 санузла
Комплектации дома
Пиломатериалы на дом
Тип пиломатериала
Сухая строганная доска
Перекрытия
Составная обвязка
Строганная доска 45х145мм.
Сетка от грызунов
Отсутствует
Черновые полы
Строганная доска 20х95мм.
Лаги пола
Строганная доска 45х145мм.
Лаги потолка
Строганная доска 45х145мм.
Стропильная система
Строганная доска 45х145мм.
Стены и перегородки
Стены наружные
Строганная доска 45х145мм.
Перегородки внутренние
Строганная доска 45х95мм.
Подкладная доска, укосы, ригеля
Строганная доска 45х145мм.
Высота потолка
2500мм.
Крыша
Обрешетка
Строганная доска 20х95мм.
Контробрешетка
Строганный брусок 45х45мм.
Кровельное покрытие
Металлочерепица Супермонтеррей
Водосточная система
Отсутствует
Паро-гидро-ветроизоляция
Влаго-ветрозащита
Ондутис Smart A 100
Пароизоляционная пленка
Ондутис Smart B
Подкровельная супердиффузионная мембрана
Ондутис Smart D
Герметизация пароизоляционной пленки
Лента Fakro HausBand
Утепление
Пол
Rockwool Лайт Баттс 150мм.
Стены
Rockwool Лайт Баттс 150мм.
Потолок
Rockwool Лайт Баттс 150мм.
Перегородки внутренние
Отсутствует
Наружная отделка
Контробрешетка на фасад
Сухая рейка 20х45мм.
Стены наружные
Имитация бруса, карельский профиль
Свесы и углы, наличники
Строганная доска 20х95мм.
Пол террасы (при наличии)
Террасная доска, Вельвет
Ограждение террасы (при наличии)
Строганная доска 20х95мм.
Окна, двери
Оконные блоки и дверь на террасу
Двухкамерные стеклопакеты ПВХ
Аксессуары к оконным блокам
Отливы внешние
Входные дверные блоки
Металлическая Россия
Перегородочные двери
Отсутствуют
Внутренняя отделка
Внутренняя контробрешетка
Отсутствует
Стены
Отсутствует
Перегородки
Отсутствует
Потолок
Отсутствует
Напольное покрытие
Отсутствует
Коммуникации
Вентиляция
Приточный клапан в сан. узле
Доставка, сборка, контроль, гарантия
Доставка и выгрузка материалов
Включена доставка и выгрузка
Сборка домокомплекта
Сборка по проектной документации (КД)
Технический надзор
Контроль персональным прорабом
Гарантия
Три года
Дополнительные опции
Фундамент: Свайно-винтовой, стоимость от
288 500 ₽
Фундамент: Железобетонные сваи, стоимость от
359 500 ₽
Коммуникации
Электропроводка: розетки, выключатели, лампы, распределительный щиток
519 200 ₽
Водоснабжение: открытая разводка ХВС, ГВС и канализация
294 600 ₽
Автономная канализация: станция биологической очистки (Интал Био-5).
214 700 ₽
Отопление: электрические обогреватели и электрический водонагреватель
352 600 ₽
Отопление: электрический котел + радиаторы
843 800 ₽
Теплый пол под ключ + стяжка
1 051 300 ₽
Приготовление ХВС: бойлер косвенного нагрева на 150 литров
145 000 ₽
Бытовая сантехника
157 600 ₽
Варианты внутренней отделки
Замена Евровагонки на ГКЛ 2 слоя
171 700 ₽
Замена Евровагонки на Имитацию бруса (стены, перегородки)
196 700 ₽
Ламинат, 33 класс, толщина 8мм.
425 300 ₽
Установка перегородочных дверей (МДФ + Эко-шпон)
171 500 ₽
Покраска внутренних стен воском Teknoviks в 3 слоя (грунтовка + два слоя воска)
674 500 ₽
Варианты внешней отделки
Покраска фасада красками Teknoviks в 3 слоя (грунтовка + два слоя краски)
477 700 ₽
Отделка фасада сайдингом "Дёке"
304 700 ₽
Отделка фасада "Hauberk" (камень, кирпич)
424 000 ₽
Отделка фасада Имитацией бруса вертикально
62 500 ₽
Отделка фасада Фиброцементный сайдинг Decover
776 300 ₽
Установка москитных сеток, подоконников
64 800 ₽
Установка водосточной системы "Дёке"
143 300 ₽
Установка цокольных панелей "Дёке"
149 100 ₽
Конструктивные элементы
Добавить в теплый контур отделку пола: Quick Deck или OSB
638 500 ₽
Добавить в теплый контур отделку стен и перегородок: Евровагонкой
899 500 ₽
Добавить в теплый контур обшивку потолка: Евровагонкой
417 200 ₽
Антисептирование силового каркаса на производстве
156 500 ₽
Усиленные лаги пола и потолка - 200мм.
132 000 ₽
Поднятие потолка на 150мм
141 100 ₽
Сетка от грызунов
80 400 ₽
Перекрестное утепление 50мм (пол, стены, потолок)
328 900 ₽
Тепло-звукоизоляция наружных стен Белтермо 20мм.
217 700 ₽
Аренда блок-контейнера для проживания бригады
83 900 ₽
Аренда биотуалета
35 700 ₽
Кастомизируйте свой дом
По вашим наброскам и чертежам совместно с архитектором создадим неповторимый дом мечты. Оставьте заявку и наш специалист свяжется с вами.
Причины заказать дом именно у нас
1
Гарантия на ваш дом на 5 лет
2
Оплата работ после сдачи объекта
3
Надзор на всех этапах монтажа и строительства
4
Не срываем сроки, платим неустойки
5
Дома строятся только по проектной документации архитектора
6
Работаем с ипотекой, материнским капиталом, субсидиями
Зафиксируйте стоимость дома

Посмотрите видео о контроле качества при строительстве










