Dachnik logo
+78122428686Без выходных 9:00-18:00

Каркасный дом 9,5х16,5м. Дк-229

Ссылка на проект: https://dachnik-spb.ru/projects/karkasnyy-dom-95h165m-dk-229/
Фасад ДК+229-1
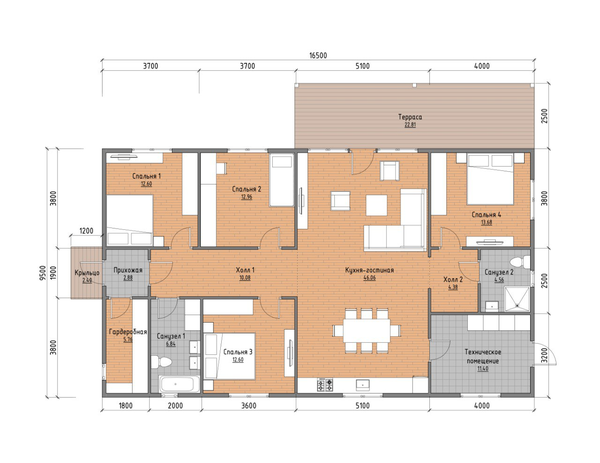
Планировка ДК+229
Фасад ДК+229-2
Фасад ДК+229-3
Фасад ДК+229-4
d35-1-5
d35-1-6
d35-1-7
d35-1-8

Комплектации дома

Тёплый контур: 8 834 850 руб.

Пиломатериалы на дом
Тип пиломатериала
Сухая строганная доска
Перекрытия
Составная обвязка
Строганная доска 45х145мм.
Сетка от грызунов
Отсутствует
Черновые полы
Строганная доска 20х95мм.
Лаги пола
Строганная доска 45х145мм.
Лаги потолка
Строганная доска 45х145мм.
Стропильная система
Строганная доска 45х145мм.
Стены и перегородки
Стены наружные
Строганная доска 45х145мм.
Перегородки внутренние
Строганная доска 45х95мм.
Подкладная доска, укосы, ригеля
Строганная доска 45х145мм.
Высота потолка
2500мм.
Крыша
Обрешетка
Строганная доска 20х95мм.
Контробрешетка
Строганный брусок 45х45мм.
Кровельное покрытие
Металлочерепица Супермонтеррей
Водосточная система
Отсутствует
Паро-гидро-ветроизоляция
Влаго-ветрозащита
Ондутис Smart A 100
Пароизоляционная пленка
Ондутис Smart B
Подкровельная супердиффузионная мембрана
Ондутис Smart D
Герметизация пароизоляционной пленки
Лента Fakro HausBand
Утепление
Пол
Rockwool Лайт Баттс 150мм.
Стены
Rockwool Лайт Баттс 150мм.
Потолок
Rockwool Лайт Баттс 150мм.
Перегородки внутренние
Отсутствует
Наружная отделка
Контробрешетка на фасад
Сухая рейка 20х45мм.
Стены наружные
Имитация бруса, карельский профиль
Свесы и углы, наличники
Строганная доска 20х95мм.
Пол террасы (при наличии)
Террасная доска, Вельвет
Ограждение террасы (при наличии)
Строганная доска 20х95мм.
Окна, двери
Оконные блоки и дверь на террасу
Двухкамерные стеклопакеты ПВХ
Аксессуары к оконным блокам
Отливы внешние
Входные дверные блоки
Металлическая Россия
Перегородочные двери
Отсутствуют
Внутренняя отделка
Внутренняя контробрешетка
Отсутствует
Стены
Отсутствует
Перегородки
Отсутствует
Потолок
Отсутствует
Напольное покрытие
Отсутствует
Коммуникации
Вентиляция
Приточный клапан в сан. узле
Доставка, сборка, контроль, гарантия
Доставка и выгрузка материалов
Включена доставка и выгрузка
Сборка домокомплекта
Сборка по проектной документации (КД)
Технический надзор
Контроль персональным прорабом
Гарантия
Три года

С отделкой: 10 152 870 руб.

Пиломатериалы на дом
Тип пиломатериала
Сухая строганная доска
Перекрытия
Составная обвязка
Строганная доска 45х145мм.
Сетка от грызунов
Отсутствует
Черновые полы
Строганная доска 20х95мм.
Лаги пола
Строганная доска 45х145мм.
Лаги потолка
Строганная доска 45х145мм.
Стропильная система
Строганная доска 45х145мм.
Стены и перегородки
Стены наружные
Строганная доска 45х145мм.
Перегородки внутренние
Строганная доска 45х95мм.
Подкладная доска, укосы, ригеля
Строганная доска 45х145мм.
Высота потолка
2500мм.
Крыша
Обрешетка
Строганная доска 20х95мм.
Контробрешетка
Строганный брусок 45х45мм.
Кровельное покрытие
Металлочерепица Супермонтеррей
Водосточная система
Отсутствует
Паро-гидро-ветроизоляция
Влаго-ветрозащита
Ондутис Smart A 100
Пароизоляционная пленка
Ондутис Smart B
Подкровельная супердиффузионная мембрана
Ондутис Smart D
Герметизация стыков пленки
Лента Fakro HausBand
Утепление
Пол
Rockwool Лайт Баттс 150мм.
Стены
Rockwool Лайт Баттс 150мм.
Потолок
Rockwool Лайт Баттс 150мм.
Перегородки внутренние
Rockwool Лайт Баттс 100мм
Наружная отделка
Контробрешетка на фасад
Сухая рейка 20х45мм.
Стены наружные
Имитация бруса, карельский профиль
Свесы и углы, наличники
Евровагонка
Пол террасы (при наличии)
Террасная доска, Вельвет
Ограждение террасы (при наличии)
Строганная доска 20х95мм.
Окна, двери
Оконные блоки и дверь на террасу
Двухкамерные стеклопакеты ПВХ
Аксессуары к оконным блокам
Отливы внешние
Входные дверные блоки
Металлическая Россия
Перегородочные двери
Отсутствуют
Внутренняя отделка
Внутренняя контробрешетка
Сухая рейка 20х45мм.
Стены
Евровагонка
Перегородки
Евровагонка
Потолок
Евровагонка
Напольное покрытие
Quick Deck Professional
Коммуникации
Вентиляция
Приточные клапана на кухне и сан. узле
Доставка, сборка, контроль, гарантия
Доставка и выгрузка материалов
Включена доставка и выгрузка
Сборка домокомплекта
Сборка по проектной документации (КД)
Технический надзор
Контроль персональным прорабом
Гарантия
Три года

Под ключ: 14 950 900 руб.

Фундамент
Вид фундамента
Железобетонные сваи
Пиломатериалы на дом
Тип пиломатериала
Сухая строганная доска
Перекрытия
Составная обвязка
Составная доска 45х145мм
Сетка от грызунов
Металлическая сетка от грызунов
Черновые полы
Строганная доска 20х95мм.
Лаги пола
Строганная доска 45х195мм.
Лаги потолка
Строганная доска 45х195мм.
Стропильная система
Строганная доска 45х195мм.
Стены и перегородки
Стены наружные
Строганная доска 45х195мм
Перегородки внутренние
Строганная доска 45х95мм.
Подкладная доска, укосы, ригеля
Строганная доска 45х145мм.
Высота потолка
2700мм.
Крыша
Обрешетка
Строганная доска 20х95мм.
Контробрешетка
Строганный брусок 45х45мм.
Кровельное покрытие
Металлочерепица Grand Line, толщина 0,5мм
Водосточная система
Docke Premium на металлических крюках
Паро-гидро-ветроизоляция
Влаго-ветрозащита стен
Плиты Белтермо 20мм
Влаго-ветрозащита пола
Ондутис Smart A 100
Пароизоляционная пленка
Пленка 200мкм
Подкровельная супердиффузионная мембрана
Ондутис Smart AM
Герметизация пароизоляционной пленки
Скотч Delta
Утепление
Пол
Rockwool Лайт Баттс 200мм.
Стены
Rockwool Лайт Баттс 200мм.
Потолок
Rockwool Лайт Баттс 200мм.
Перегородки внутренние
Rockwool Лайт Баттс 100мм
Наружная отделка
Контробрешетка на фасад
Сухая рейка 20х45мм.
Стены наружные
Имитация бруса, карельский профиль
Свесы и углы, наличники
Строганная доска 20х95мм.
Заводская покраска фасада
Краски Teknoviks в 3 слоя
Пол террасы (при наличии)
Террасная доска, Вельвет
Ограждение террасы (при наличии)
Строганная доска 20х95мм.
Окна, двери
Оконные блоки и балконная дверь
Пятикамерная система 70мм, Veka Softline
Аксессуары к оконным блокам
Москитные сетки, отливы, подоконники
Входные дверные блоки
Металлическая с терморазрывом
Перегородочные двери
Экошпон
Внутренняя отделка
Внутренняя контробрешетка
Сухая рейка 20х45мм.
Стены
Имитация бруса, карельский профиль
Перегородки
Имитация бруса, карельский профиль
Потолок
Евровагонка
Напольное покрытие
Ламинат
Бытовая сантехника
Унитаз, раковина, душевая кабина
Коммуникации
Вентиляция
Вентиляционные клапана в кровле и приточные клапана в стене
Электропроводка
Розетки, выключатели, лампы, распределительный щиток
Автономная канализация
Станция биологической очистки
Водоснабжение (трубы)
Разводка ХВС, ГВС и канализации
Водоснабжение (горячая вода)
Бойлер электрический 100 л
Отопление
Электрические конвектора
Бытовая сантехника
Унитаз, раковина, душевая кабина
Обеспечение строительства
Обеспечение строительства
Аренда бытовки и биотуалета
Проектирование
Архитектурный и конструктивный проект
Доставка и выгрузка материалов
Бесплатная доставка и выгрузка
Кадастровые работы
Постановка дома на кадастровый учёт
Технический надзор
Контроль персональным прорабом
Гарантия
Три года

Дополнительные опции

Фундамент: Свайно-винтовой, стоимость от
271 000 ₽
Фундамент: Железобетонные сваи, стоимость от
348 000 ₽
Коммуникации
Электропроводка: розетки, выключатели, лампы, распределительный щиток
613 600 ₽
Водоснабжение: открытая разводка ХВС, ГВС и канализация
294 600 ₽
Автономная канализация: станция биологической очистки (Интал Био-5).
241 800 ₽
Отопление: электрические обогреватели и электрический водонагреватель
406 400 ₽
Отопление: электрический котел + радиаторы
937 000 ₽
Теплый пол под ключ + стяжка
1 291 400 ₽
Приготовление ХВС: бойлер косвенного нагрева на 150 литров
145 000 ₽
Бытовая сантехника
157 600 ₽
Варианты внутренней отделки
Добавить в теплый контур отделку пола: Quick Deck или OSB
471 200 ₽
Добавить в теплый контур отделку стен и перегородок: Евровагонкой
846 500 ₽
Добавить в теплый контур обшивку потолка: Евровагонкой
288 800 ₽
Замена Евровагонки на ГКЛ 2 слоя
203 200 ₽
Замена Евровагонки на Имитацию бруса (стены, перегородки)
254 000 ₽
Ламинат, 33 класс, толщина 8мм.
562 400 ₽
Установка перегородочных дверей (МДФ + Эко-шпон)
313 200 ₽
Покраска внутренних стен воском Teknoviks в 3 слоя (грунтовка + два слоя воска)
798 000 ₽
Варианты внешней отделки
Покраска фасада красками Teknoviks в 3 слоя (грунтовка + два слоя краски)
447 500 ₽
Ламинация окон ПВХ со стороны улицы
90 200 ₽
Отделка фасада "Hauberk" (камень, кирпич)
385 800 ₽
Отделка фасада Имитацией бруса вертикально
96 000 ₽
Отделка фасада Фиброцементный сайдинг Decover
736 100 ₽
Установка москитных сеток, подоконников
70 000 ₽
Установка водосточной системы "Дёке"
137 400 ₽
Установка цокольных панелей "Дёке"
165 600 ₽
Конструктивные элементы
Антисептирование силового каркаса на производстве
187 100 ₽
Усиленные лаги пола и потолка - 200мм.
135 400 ₽
Поднятие потолка на 150мм
159 900 ₽
Сетка от грызунов
77 600 ₽
Перекрестное утепление 50мм (пол, стены, потолок)
354 200 ₽
Тепло-звукоизоляция наружных стен Белтермо 20мм.
214 400 ₽
Аренда блок-контейнера для проживания бригады
85 700 ₽
Аренда биотуалета
36 800 ₽
Главная»проекты»Каркасный дом 9,5х16,5м. Дк-229

Каркасный дом 9,5х16,5м. Дк-229

Стоимость:
8 834 850 ₽
* Цена в теплом контуре, без привлечения кредитных средств
Стоимость с 26 мая: 9 541 638 ₽
4 спальни
2 санузла

Комплектации дома

Пиломатериалы на дом
Тип пиломатериала
Сухая строганная доска
Перекрытия
Составная обвязка
Строганная доска 45х145мм.
Сетка от грызунов
Отсутствует
Черновые полы
Строганная доска 20х95мм.
Лаги пола
Строганная доска 45х145мм.
Лаги потолка
Строганная доска 45х145мм.
Стропильная система
Строганная доска 45х145мм.
Стены и перегородки
Стены наружные
Строганная доска 45х145мм.
Перегородки внутренние
Строганная доска 45х95мм.
Подкладная доска, укосы, ригеля
Строганная доска 45х145мм.
Высота потолка
2500мм.
Крыша
Обрешетка
Строганная доска 20х95мм.
Контробрешетка
Строганный брусок 45х45мм.
Кровельное покрытие
Металлочерепица Супермонтеррей
Водосточная система
Отсутствует
Паро-гидро-ветроизоляция
Влаго-ветрозащита
Ондутис Smart A 100
Пароизоляционная пленка
Ондутис Smart B
Подкровельная супердиффузионная мембрана
Ондутис Smart D
Герметизация пароизоляционной пленки
Лента Fakro HausBand
Утепление
Пол
Rockwool Лайт Баттс 150мм.
Стены
Rockwool Лайт Баттс 150мм.
Потолок
Rockwool Лайт Баттс 150мм.
Перегородки внутренние
Отсутствует
Наружная отделка
Контробрешетка на фасад
Сухая рейка 20х45мм.
Стены наружные
Имитация бруса, карельский профиль
Свесы и углы, наличники
Строганная доска 20х95мм.
Пол террасы (при наличии)
Террасная доска, Вельвет
Ограждение террасы (при наличии)
Строганная доска 20х95мм.
Окна, двери
Оконные блоки и дверь на террасу
Двухкамерные стеклопакеты ПВХ
Аксессуары к оконным блокам
Отливы внешние
Входные дверные блоки
Металлическая Россия
Перегородочные двери
Отсутствуют
Внутренняя отделка
Внутренняя контробрешетка
Отсутствует
Стены
Отсутствует
Перегородки
Отсутствует
Потолок
Отсутствует
Напольное покрытие
Отсутствует
Коммуникации
Вентиляция
Приточный клапан в сан. узле
Доставка, сборка, контроль, гарантия
Доставка и выгрузка материалов
Включена доставка и выгрузка
Сборка домокомплекта
Сборка по проектной документации (КД)
Технический надзор
Контроль персональным прорабом
Гарантия
Три года
Дополнительные опции
Фундамент: Свайно-винтовой, стоимость от
271 000 ₽
Фундамент: Железобетонные сваи, стоимость от
348 000 ₽
Коммуникации
Электропроводка: розетки, выключатели, лампы, распределительный щиток
613 600 ₽
Водоснабжение: открытая разводка ХВС, ГВС и канализация
294 600 ₽
Автономная канализация: станция биологической очистки (Интал Био-5).
241 800 ₽
Отопление: электрические обогреватели и электрический водонагреватель
406 400 ₽
Отопление: электрический котел + радиаторы
937 000 ₽
Теплый пол под ключ + стяжка
1 291 400 ₽
Приготовление ХВС: бойлер косвенного нагрева на 150 литров
145 000 ₽
Бытовая сантехника
157 600 ₽
Варианты внутренней отделки
Добавить в теплый контур отделку пола: Quick Deck или OSB
471 200 ₽
Добавить в теплый контур отделку стен и перегородок: Евровагонкой
846 500 ₽
Добавить в теплый контур обшивку потолка: Евровагонкой
288 800 ₽
Замена Евровагонки на ГКЛ 2 слоя
203 200 ₽
Замена Евровагонки на Имитацию бруса (стены, перегородки)
254 000 ₽
Ламинат, 33 класс, толщина 8мм.
562 400 ₽
Установка перегородочных дверей (МДФ + Эко-шпон)
313 200 ₽
Покраска внутренних стен воском Teknoviks в 3 слоя (грунтовка + два слоя воска)
798 000 ₽
Варианты внешней отделки
Покраска фасада красками Teknoviks в 3 слоя (грунтовка + два слоя краски)
447 500 ₽
Ламинация окон ПВХ со стороны улицы
90 200 ₽
Отделка фасада "Hauberk" (камень, кирпич)
385 800 ₽
Отделка фасада Имитацией бруса вертикально
96 000 ₽
Отделка фасада Фиброцементный сайдинг Decover
736 100 ₽
Установка москитных сеток, подоконников
70 000 ₽
Установка водосточной системы "Дёке"
137 400 ₽
Установка цокольных панелей "Дёке"
165 600 ₽
Конструктивные элементы
Антисептирование силового каркаса на производстве
187 100 ₽
Усиленные лаги пола и потолка - 200мм.
135 400 ₽
Поднятие потолка на 150мм
159 900 ₽
Сетка от грызунов
77 600 ₽
Перекрестное утепление 50мм (пол, стены, потолок)
354 200 ₽
Тепло-звукоизоляция наружных стен Белтермо 20мм.
214 400 ₽
Аренда блок-контейнера для проживания бригады
85 700 ₽
Аренда биотуалета
36 800 ₽

Кастомизируйте свой дом

По вашим наброскам и чертежам совместно с архитектором создадим неповторимый дом мечты. Оставьте заявку и наш специалист свяжется с вами.

Причины заказать дом именно у нас

1

Гарантия на ваш дом на 5 лет

2

Оплата работ после сдачи объекта

3

Надзор на всех этапах монтажа и строительства

4

Не срываем сроки, платим неустойки

5

Дома строятся только по проектной документации архитектора

6

Работаем с ипотекой, материнским капиталом, субсидиями

Зафиксируйте стоимость дома

Посмотрите видео о контроле качества при строительстве

Свяжитесь с нами, мы ответим на все вопросы и рассчитаем стоимость вашего дома