Участок 6 соток в кп массив Никольское и домом Нортвуд
Стоимость:
* Цена в теплом контуре, без привлечения кредитных средств12 370 100 ₽
Стоимость с 15 апреля: 13 359 708 ₽
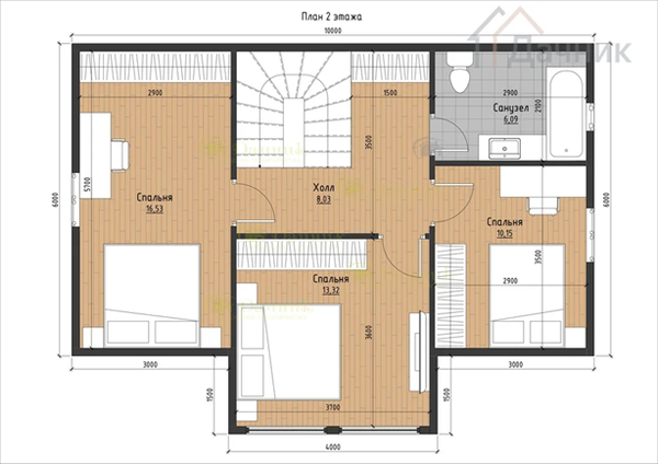
4 спальни
2 санузла
Комплектации дома
Преимущества участка с подрядом
Межевание
Установление границ земельного участка на местности
Топография
Топографическая съёмка земельного участка
Заезд на участок
Заезд шириной до 6 метров
Регистрация права собственности
Технический план и технический паспорт на дом, для регистрации права собственности.
Сервисное обслуживание дом
Осмотр, проверка, диагностика в течение 1.5 лет
Страхование
Страховка на дом от Росгосстрах
Земля
Локация
28 км от Зеленогорска, 23 км от Рощино
Окружение
Между двух озёр Подгорное и Красногвардейское
Участок
Участок 6 соток
Электричество
Электричество по Госпрограмме
Инфраструктура
Охрана, зимний водопровод, интернет, охрана
Газификация
Возможность прокладки газопровода по границе участка
Дом
Вид фундамента
Железобетонные сваи
Силовой каркас
Сухая доска 40х150мм.
Кровля
Металлочерепица Супермонтеррей
Утепление
Rockwool Лайт Баттс 150мм.
Окна, двери
Двухкамерные стеклопакеты ПВХ
Внешняя отделка
Имитация бруса карельский профиль
Внутренняя отделка (стены, потолок)
Имитация бруса
Напольное покрытие
Ламинат
Коммуникации в доме
Вентиляция
Приточные и вытяжные клапана
Электропроводка
Розетки, выключатели, лампы
Водоснабжение
Разводка ХВС, ГВС и канализации
Отопление
Электрические конвектора
Канализация
Станция биологической очистки
Доставка, сборка, контроль, гарантия
Доставка и выгрузка материалов
Включена доставка и выгрузка
Сборка домокомплекта
Сборка по проектной документации (КД)
Технический надзор
Контроль персональным прорабом
Гарантия
До 3 лет
Дополнительные опции
Кастомизируйте свой дом
По вашим наброскам и чертежам совместно с архитектором создадим неповторимый дом мечты. Оставьте заявку и наш специалист свяжется с вами.
Причины заказать дом именно у нас
1
Гарантия на ваш дом на 5 лет
2
Оплата работ после сдачи объекта
3
Надзор на всех этапах монтажа и строительства
4
Не срываем сроки, платим неустойки
5
Дома строятся только по проектной документации архитектора
6
Работаем с ипотекой, материнским капиталом, субсидиями
Зафиксируйте стоимость дома

Посмотрите видео о контроле качества при строительстве








