Участок 7,25 соток в коттеджном поселке Русская Усадьба и домом ДК-181
Стоимость:
* Цена в теплом контуре, без привлечения кредитных средств10 023 900 ₽
Стоимость с 10 марта: 10 825 812 ₽
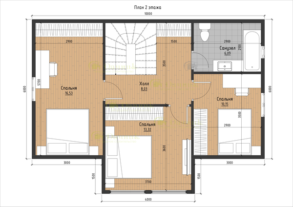
4 спальни
2 санузла
Комплектации дома
Преимущества участка с подрядом
Межевание
Установление границ земельного участка на местности
Топография
Топографическая съёмка земельного участка
Заезд на участок
Заезд шириной до 6 метров
Регистрация права собственности
Технический план и технический паспорт на дом, для регистрации права собственности.
Сервисное обслуживание дом
Осмотр, проверка, диагностика в течение 1.5 лет
Страхование
Страховка на дом от Росгосстрах
Земля
Локация
2 км от Павловска
Окружение
Парки: Павловский, Екатерининский, Александровский, Мариенталь
Участок
Участок 8 соток
Электричество
15 кВт прямой договор от Ленэнерго
Инфраструктура
Шлагбаум, охрана, детская площадка
Газификация
Возможность прокладки газопровода по границе участка
Дом
Вид фундамента
Железобетонные сваи
Силовой каркас
Сухая доска 40х150мм.
Кровля
Металлочерепица Супермонтеррей
Утепление
Rockwool Лайт Баттс 150мм.
Окна, двери
Двухкамерные стеклопакеты ПВХ
Внешняя отделка
Имитация бруса карельский профиль
Внутренняя отделка (стены, потолок)
Имитация бруса
Напольное покрытие
Ламинат
Коммуникации в доме
Вентиляция
Приточные и вытяжные клапана
Электропроводка
Розетки, выключатели, лампы
Водоснабжение
Разводка ХВС, ГВС и канализации
Отопление
Электрические конвектора
Канализация
Станция биологической очистки
Доставка, сборка, контроль, гарантия
Доставка и выгрузка материалов
Включена доставка и выгрузка
Сборка домокомплекта
Сборка по проектной документации (КД)
Технический надзор
Контроль персональным прорабом
Гарантия
До 3 лет
Дополнительные опции
Кастомизируйте свой дом
По вашим наброскам и чертежам совместно с архитектором создадим неповторимый дом мечты. Оставьте заявку и наш специалист свяжется с вами.
Причины заказать дом именно у нас
1
Гарантия на ваш дом на 5 лет
2
Оплата работ после сдачи объекта
3
Надзор на всех этапах монтажа и строительства
4
Не срываем сроки, платим неустойки
5
Дома строятся только по проектной документации архитектора
6
Работаем с ипотекой, материнским капиталом, субсидиями
Зафиксируйте стоимость дома
Отправляя форму вы соглашаетесь с условиями обработки персональных данных

Посмотрите видео о контроле качества при строительстве

Свяжитесь с нами, мы ответим на все вопросы и рассчитаем стоимость вашего дома
Отправляя форму вы соглашаетесь с условиями обработки персональных данных






